Byt P

Toto je byt pre štvorčlennú rodinu v centre Bratislavy. Navrhli sme nový preplávajúci pôdorys s dostatkom úložných priestorov. Čistý byt ponechávame na zabývanie samotnej rodine.
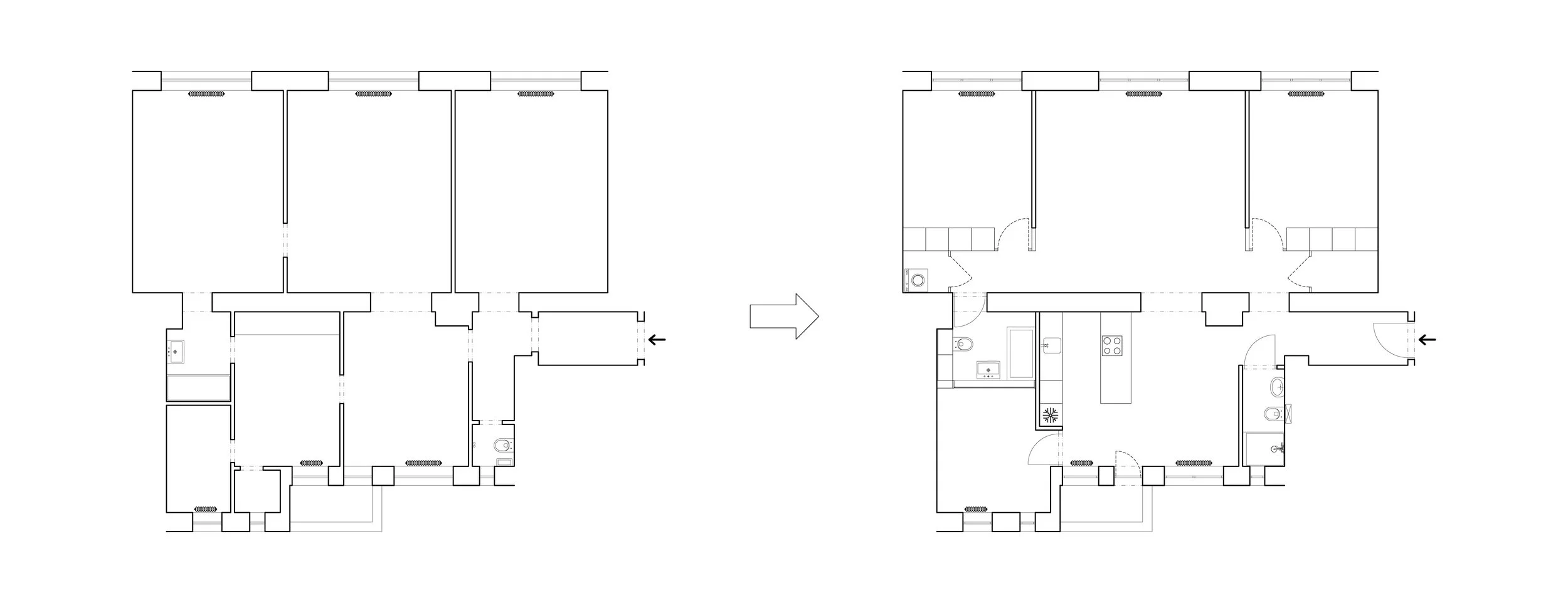
Bytový dom v mestskom bloku bol postavený v roku 1947 z ruín mesta. Zbombardovaná rafinéria „Apolka“ (1944) bola blízkym zdrojom stavebného materiálu. Tehlové steny majú viacero odtieňov. Na niektorých sú odtlačky rúk a topánok. 2019 prichádzame do bytu s dispozíciou, ktorá delí. Každá izba je samostatný (po)byt.
Nový návrh je doslova holobyt, bez nároku na zásahy do interiérového dizajnu. Sofa, jedálenský stôl, mobiliár, doplnky boli tabu. Nosnou témou sú stavebné úpravy a minimalizácia materiálov s jasným odkazom na dom a jeho históriu. Materiály sú zámerne konvenčné, sledujú jednotenie. Šatníky a sklady sú súčasťou stavebného interiéru. 
Dispozícia je postavená na preplávajúcej dennej časti s nepravidelným tvarom. Nosná stena v strede domu nedelí, spája. Zálivy a neukončené priečky centrum bytu nafukujú, denná časť stráca jasné hranice, je košatá. Nočná časť je roztrieštená po okrajoch. Izolácia izieb vytvára súkromie a pohyb zároveň. Rodičia sú skrytí v izbe za kuchyňou, prví pri rannej káve.
Kde / Bratislava I.
Ako / Čistý byt ponechávame na zabývanie samotnej rodine.
Kedy / 2019/2020
Status / Realizácia
Spolupráca / Karol Volf, Veronika Vaňová
Fotografie / Katarína Príkopská
Plocha / 111m2
Stavba: http://www.akopreseba.sk/
Stolárska výroba: https://www.facebook.com/L.Savagewoodwork.sk/
Osvetlenie: https://casca.sk/
 
             
             
             
             
             
             
             
             
             
            