B-S 10

Bunker B-S 10 
Po vzniku Československa v roku 1918 bola hranica s Rakúskom a Maďarskom považovaná za potencionálne budúce bojisko. Bunker B-S 10 „Tři hranice“ je súčasťou opevneného predmostia tvoreného z viacerých bunkrov hlavne na petržalskej strane Bratislavy. 
Dizajn, konštrukčné riešenie a detaily sú výsledkom priamej spolupráce s Francúzskom, ktoré zdieľalo s československou armádou svoje skúsenosti pri výstavbe Maginotovej línie.
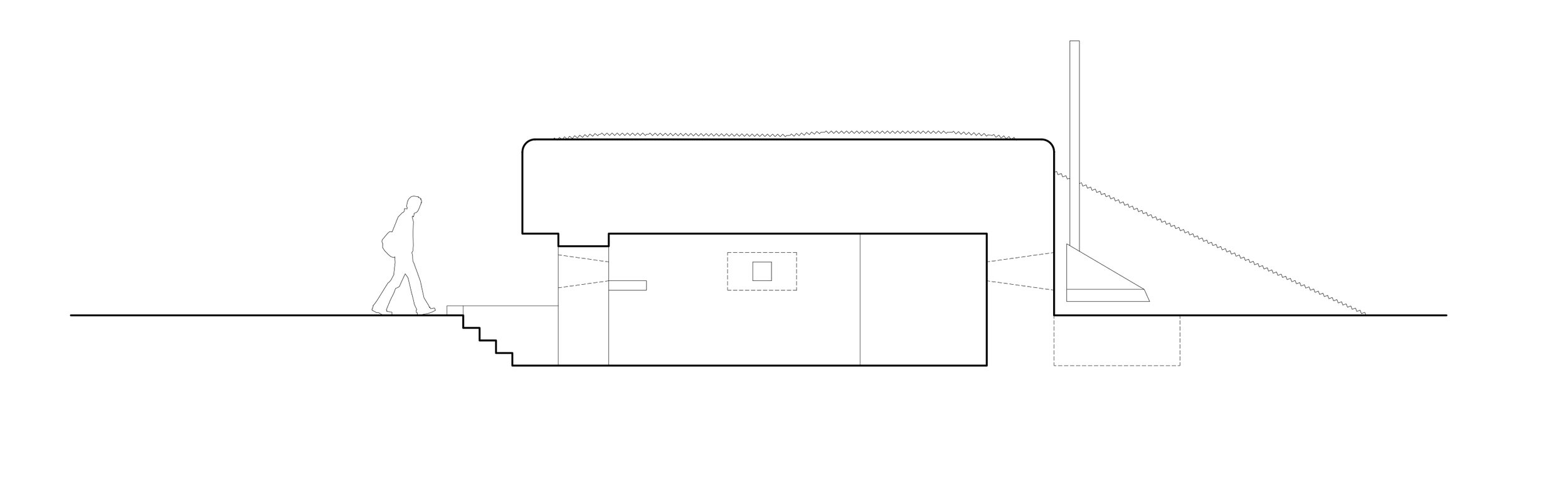
Výstavba bunkru sa realizovala medzi rokmi 1934-1935. Do zeme čiastočne zapustená masívna hmota má železobetónový obal v hrúbke 1,5m. Už počas medzivojnového obdobia sa realizovalo niekoľko stavebných úprav. Objekt bol dimenzovaný pre 10 vojakov, ktorí primárne obsluhovali 2 ťažké guľomety s kapacitou 100 000 nábojov. Súčasťou obrany bol aj systém na vhadzovanie granátov do miest mimo zorného poľa obrancov. Ľahký guľomet s otočným zvonom nebol nikdy realizovaný. Otvor na zvon sa v minulosti zabetónoval a ponechal sa v ňom priestor na periskop. Bunker mal neskôr nainštalovanú vzduchotechniku so šliapacím mechanizmom, na princípe bicykla s kapacitou výmeny vzduchu 800m3/h. K skutočným bojom sa bunker nikdy nepripojil. Bez povšimnutia ostal až do roku 2017. Osamotená nenápadná stavba v strede poľa, kúsok od rýchlostnej cesty si hľadala nový účel.
Zadanie
Zadanie sa formovalo postupne. Tento typ stavby podlieha stereotypom. Častá je snaha o múzem, i pri zmene účelu je odkaz na históriu silný. Výsledkom býva cesta k obhliadke, ktorá samotná zaberie tak 10 minút. Zážitkové bývanie s primeraným štandardom je náplň, forma odpovede je architektúra bez dotieravej snahy zapáčiť či šokovať na prvý pohľad. Horúca sprcha v útrobách betónového bunkra je zvláštny pocit. Ohnisko s terasou je orientované na „nepriateľa“.	
Okolie
Neprekvapivý prístup očistenia od nánosov priniesol prekvapenia - objavy, ktoré zmenili hru. Bunker sa nachádza 17m od diaľnice. Bežný rozhovor je možný iba so zvýšeným hlasom. Pôvodná priama strieľňa ku hranici bola zabetónovaná a zasypaná. Historická dokumentácia ju naznačovala, no potvrdil to až výkop. Na odvrátenej strane diaľnice tak vzniklo malé átrium s terasou a ohniskom. Nová aktivita na bunkri bola skvelá správa. Betónové steny átria odhalili pôvodnú kamufláž. Vykopaná zemina sa použila ako val, hranica medzi bunkrom a poľom. Navrhujeme ochrannú zeleň, ktorá nenápadne zrastá s náletmi. Zeleň stúpa, ostrov v poli ožíva. Vonkajšia sprcha a latrína sú skyté v kríkoch. Strecha bunkra je malý pahorok s výhľadom do širokého okolia: Televízna veža Kamzík na úpätí Malých Karpát, jedinečná Petržalka, veterné elektrárne Horného Rakúska a nekončiaci sa prúd áut na D2.
Bunker
Interiér nemal byť replikou vojenského účelu ani výnimočným zásahom architekta. Projekt bol dialógom architektov, postupne odkrývanej reality stavby a Martina Kleibla z OZ Konduktor zaoberajúcim sa kultúrnymi hodnotami Petržalky.
Masívny betón sa umyl na kožu. Navrhli sme nevyhnutný nábytok potrebný na prežitie. Postele ako úrovne napevno vložené medzi steny. Oceľový pozinkovaný základ a záklop z masívneho dreva predvídajú nie vždy ideálne podmienky a ľahké opravy. Kuchynský ostrov má totožnú konštrukciu ako posteľ. Oceľový rám a drevená pracovná doska, ostatné je voľné. Zopár kotiev v stenách umožňuje zavesenie sietí na spanie. Prenocuje tu 6-8 návštevníkov. Modré nádrže na filtráciu vody v kuchyni sa zopakujú v oceľových policiach rovnakej farby. Vonkajšie betónové vane na nábojnice sa použili na zber sivej vody zo sprchy a kuchyne z interiéru. 
 
             
             
             
             
             
             
             
             
             
             
             
             
             
             
             
             
             
             
             
            