Dom B

Rekonštrukcia rodinného domu v Starom meste, pre aktuálne potreby mladej rodiny a rodičov.
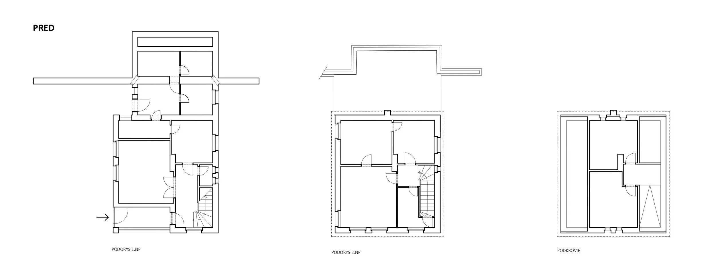
Samotný rodinný dom sa nachádza až v druhom pláne zástavby: 25m od hranice pozemku a cca.o 8m vyššie ako je úroveň cesty. Osadený je na vyrovnanej terase svahovitého terénu. Mal dve podlažia a podkrovie, kde sedlová strecha má štít smerom do ulice.  Zadaním bolo vytvoriť dvojgeneračné bývanie, zachovať genius loci pôvodného domu, prepojiť dom s o záhradou, zároveň sa popasovať so skromnejším rozpočtom.
Dom sme očistili od nevhodných nánosov, vertikálne rozdelili na rodičovskú časť s vlastným vstupom na prízemí a časť pre mladú rodinu na poschodí a v podkroví.
Dôležitým prvkom bolo prepojenie dennej časti s terasou a záhradou a okolitými výhľadmi do krajiny. 
Kde / Bratislava - Staré mesto
Čo / Rekonštrukcia rodinného domu
Ako /  Rekonštruckia rodinného domu v Starom meste, pre aktuálne potreby mladej rodiny a rodičov.  Dom sme očistili od nevhodných nánosov, vertikálne rozdelili na rodičovskú časť s vlastným vstupom na prízemí a časť pre mladú rodinu na poschodí a v podkroví.
Kedy / 2018-2023
Status / Realizácia
Foto / Katarína Príkopská
 
             
             
             
             
             
             
             
             
             
             
             
             
             
             
             
             
            