Zážitkové centrum vedy

Kde / Bratislava
Ako / Návšteva objektu sa stáva pohybom živým mestom, kde sa striedajú otvorené a intímne priestory, podnecujúce interakciu aj sústredenie.
Kedy / 2025
Status / Architektonická súťaž - odmena
Kto / toito architekti
plusminusarchitects https://www.plusminusarchitects.com/
STUDIO BRUT https://www.instagram.com/studio_brut/?hl=en
Nadmiera objemu, mierka a súbor menších objektov
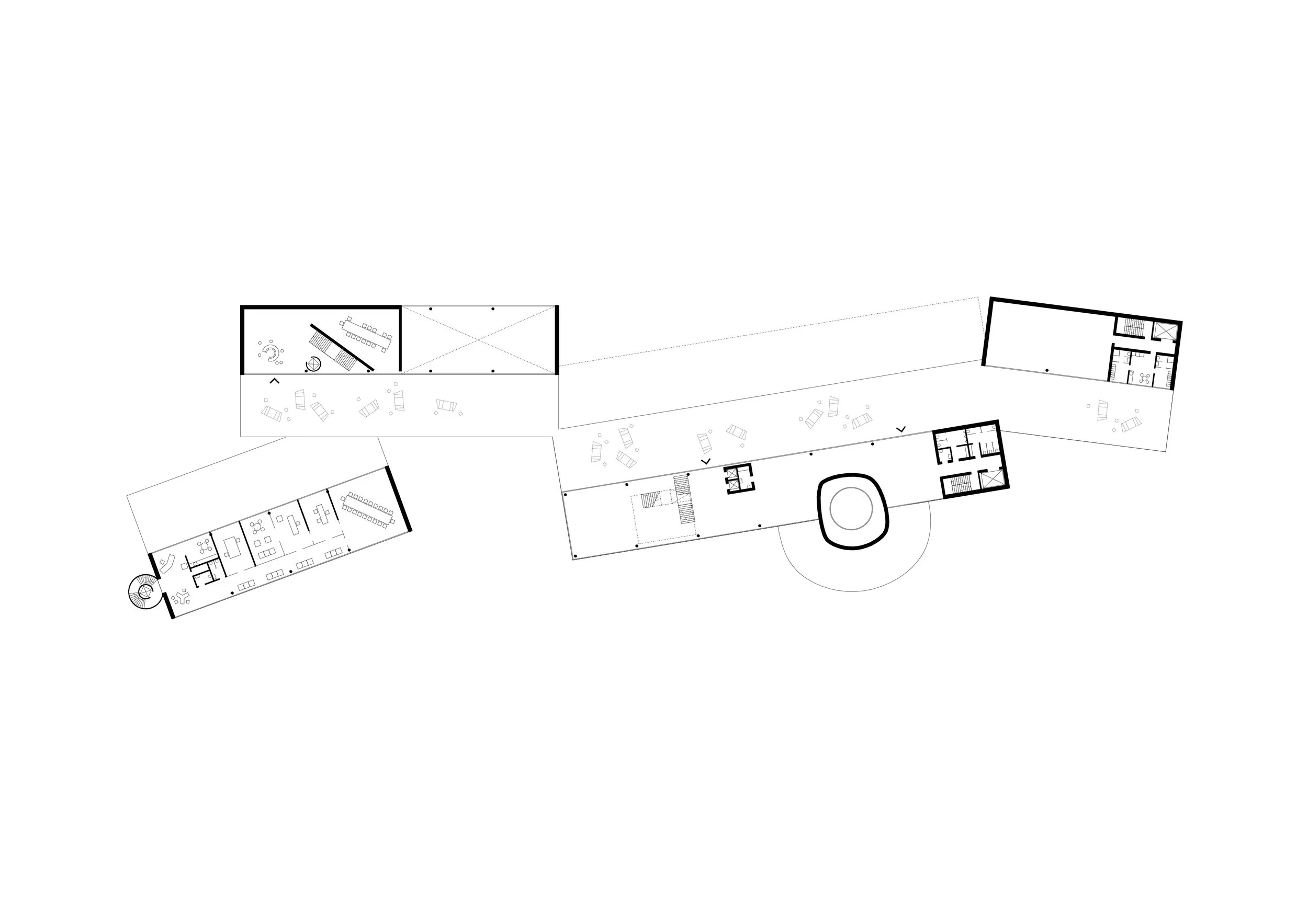
Zážitkové centrum vedy svojou mierkou presahuje hranicu vnemu z bezprostrednej blízkosti. Objekty s dĺžkou nad sto metrov sa stávajú ikonami, ktoré potrebujú odstup. Parcela sa však nachádza v dotyku s dopravnou tepnou E65, priamo pri masívnej protihlukovej stene – odstup tu neexistuje. Preto vznikol súbor štyroch menších objektov, ktoré spolu vytvárajú ľudskú mierku. Každá hala má svoju nosnú náplň: jedáleň s administratívou, foyer s kongresom, expozície a planetárium, technický blok. Medzi halami vznikajú ulice, námestia, pešie trasy a pobytové schody – priestory, s ktorými návštevník prirodzene interaguje.
Konštrukčný a priestorový koncept
Nosný systém tvorí železobetónový skelet s modulom 9 × 9 m, bežný v priemyselných objektoch. Tento raster umožňuje staticky jednoduché ustupovanie podlaží a zároveň poskytuje vysokú priestorovú flexibilitu.
Dom pod svahom pri dopravnej tepne
Pozemok sa zvažuje smerom k diaľnici. Objekt je navrhnutý ako akustická bariéra a zároveň oporný prvok svahu. Prízemie sa otvára do východnej zelenej časti parcely, zatiaľ čo západná fasáda je zapustená do svahu. Ustupujúce podlažia sa postupne preklápajú na obe strany, čím sa otvárajú výhľady na zalesnený kopec ZOO.
Dotyk
Materiálové riešenie domu je prísne prirodzené. Nosnú kostru tvorí prefabrikovaný železobetónový skelet, ktorý definuje rytmus a mierku objektu. Obvodový plášť pozostáva z presklených stien a sendvičových panelov s kovovým povrchom, reflektujúcim okolie. Interiér kombinuje drevo, textílie, betón a čistú bielu, čím vytvára prostredie pokoja a rovnováhy.
foto: CVTI SR